
一、概述:
該系列產品主要用于散狀物料的大傾角連續輸送,采用具有波狀擋邊和橫隔板的輸送帶。輸送傾角為0-90°(70°以下),其特點為:用一臺設備在狹小的空間可完成水平傾斜輸送,具有通用帶式輸送機水平或小傾角輸送可靠高、節能和斗式提升物料可靠經濟的優點。本系列產品廣泛用于煤炭、糧食、建材、化工、水電和冶金等部門,在環境溫度為-19℃-+40℃內輸送堆積密度為0.5-2.5t/m3的各種散裝物料,對于輸送有特殊要求的物料,如耐高溫或具有酸、堿性、油類物質、有機浴劑等成分的物料,須在訂貨時提出,采用相應材料的特殊擋邊輸送帶。
二、主要技術參數:
| 帶寬B | 400 | 500 | 600 | 800 | 1000 | 1200 | 1400 | ||||||||
| 擋邊高H | 60 | 80 | 80 | 120 | 120 | 160 | 160 | 200 | 160 | 240 | 200 | 300 | 240 | 400 | |
| 橫隔板間距 | 100 | 120 | 120 | 160 | 160 | 200 | 200 | 250 | 200 | 280 | 250 | 350 | 280 | 400 | |
|
輸送量 (原煤、帶速1m/s) M3/h |
35° | 28 | 36 | 50 | 71 | 104 | 120 | 157 | 195 | 216 | 327 | 331 | 466 | 500 | 794 |
| 45° | 19 | 25 | 33 | 57 | 83 | 97 | 127 | 157 | 175 | 271 | 267 | 384 | 414 | 680 | |
| 60° | 15 | 19 | 23 | 40 | 58 | 59 | 90 | 112 | 124 | 197 | 190 | 278 | 302 | 524 | |
| 90 | 9 | 11 | 15 | 21 | 31 | 37 | 48 | 60 | 66 | 106 | 102 | 149 | 162 | 281 | |
| 外型尺寸 | 頭輪帶面高H1 | 1200 | 1350 | 1615 | 1815 | 2000,2200 | 2300,2525 | 2525,2700 | |||||||
| 尾輪帶面高H2 | 690 | 800 | 950 | 1115 | 1250,1400 | 1600,1700 | 1600,1700 | ||||||||
| 中間段帶面高H3 | 700 | 800 | 850 | 1115 | 850,1200 | 1400,1500 | 1600,1700 | ||||||||
| 中間段地腳高B1 | 580 | 850 | 1020 | 1220 | 1440 | 1690 | 1890 | ||||||||
注:本表中輸送量按橫隔板間距計算,帶速增減,輸送量成倍增減,其他物料可參見此表確定。
| 粒度mm | ≤100mm | ≤160 | ≤250mm | ||
| 速度 m/s | 擋邊高≤120mm | 傾角≤30° | 2 | 1.6 | |
| 傾角≤角60° | 1.6 | 1.25 | |||
| 擋邊高≤240mm | 傾角≤30° | 2.5 | 2 | 1.6 | |
| 傾角≤60° | 1.6 | 1.6 | 1.0 | ||
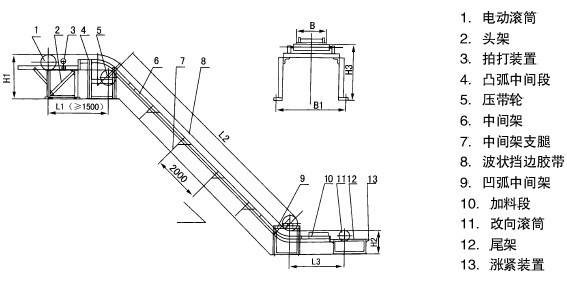
三、外形圖:
四、選型:
根據輸送物料特性、傾角及輸送量的大小,參照表1 及表2,確定輸送機的帶寬,擋邊高及帶速大小。其中:
(1)擋邊輸送帶分常溫(-20~50℃)、耐熱(120℃以下),耐高溫(180℃以下)及耐酸耐堿耐油等幾種;
(2)輸送大塊物料時,擋邊應選用偏高的;也可不增大帶寬和擋邊,用提高帶速(1.25m/s、1.6m/s、2m/s)的辦法提高輸送量;
(3)輸送高度70m,粒度應小于擋邊高30-40mm。
(4)上托輥間距一般為1.2m,下托輥間距一般為1.2m,傾角大于60°時為2.4m,防跑偏擋輥間距為3-6m。L3標準為2200,1500。
(5)功率估算按下表。
大傾角膠帶輸送機簡明選型計算表格
|
帶寬
B(mm) |
擋邊高
H(mm) |
30°
|
40°
|
60°
|
75°
|
||||
|
輸送量
(m 3/h) |
功率
(Kw) |
輸送量
(m 3/h) |
功率
(Kw) |
輸送量
(m 3/h) |
功率
(Kw) |
輸送量
(m 3/h) |
功率
(Kw) |
||
|
500
|
120
|
52.8
|
2.85
|
63.2
|
1.86
|
26.6
|
1.32
|
19.8
|
0.98
|
|
650
|
120
|
77.6
|
3.97
|
55.3
|
2.6
|
39
|
1.85
|
29
|
1.35
|
|
160
|
105
|
5.44
|
76.3
|
3.57
|
56.2
|
2.56
|
41.6
|
1.86
|
|
|
800
|
160
|
133
|
6.99
|
96.6
|
4.59
|
71.2
|
3.28
|
52.6
|
2.38
|
|
200
|
195
|
9.8
|
159.8
|
7.07
|
117.6
|
5.07
|
86.5
|
3.66
|
|
五、使用說明:
1、本表僅適于初步簡易選型,選型結果應按計算結果確定。
2、本表中數據按膠帶線速度V=1m/s,橫隔板間距ts=0.25m,物為容量γ=1t/m3,提升高度H =10m為假定條件計算,如條件不同應適當換算。
3、選型舉例:
已知:輸送物料為煤,容量γ=0.8t/m3,物料粒度A《40mm,輸送傾角β=45°,輸送量Q =85t/h,輸送高度15m,求所需帶寬和帶速以及電機功率。先求得膠帶機輸送量應為85t/h÷0.5t/m3,=106.25m 3/h,然后在表中45°傾角列中查到B=800,H=160的輸送量96.6m 3/h為接近,再將線速度改為1.25m/s,則膠帶輸送量成為96.6m 3/h×1.25=120.75m 3/h,即可滿足使用要求。相應所需功率為4.59Kw×15m÷10m×1.25=8.6kw,可選電機功率11KW。
4、橫隔板形式根據輸送機傾角大小選定;
18°<β≤40°T型,40°<β≤60°C型,60°<β≤90° TC型